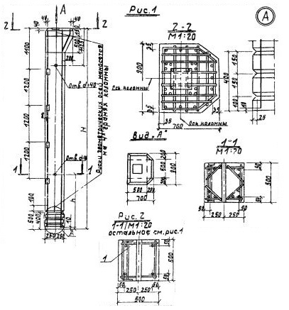
К 3.5-1-1

Чертеж изделия:
Чертеж К 3.5-1-1
Характеристики изделия:
ПараметрЗначение
Длина4150 мм
Ширина500 мм
Высота500 мм
Масса3300 кг
Нормативный документСерия 3.702.1-4

К 3.5-1-1   Колонна по Серии 3.702.1-4.