НР5-58.27.35-6б-1

Чертеж изделия:
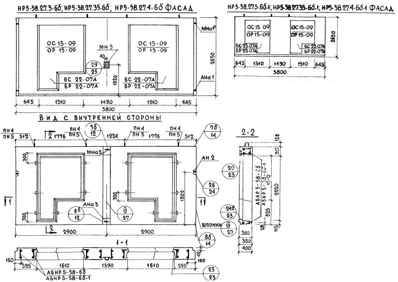
Характеристики изделия:
ПараметрЗначение
Длина5800 мм
Ширина350 мм
Высота2650 мм
Масса4920 кг
Нормативный документСерия 1.132-1
Цена:
Рассчитать стоимость

НР5-58.27.35-6б-1   Наружная стеновая панель рядовая по Серии 1.132-1.